
Skanderborg Andelsboligforening har opført 68 boliger på Vesterskovvej i varierende størrelser. Alle er moderne og gennemlyste boliger med hvide vægge og lofter, samt flot laminatgulv i egetræslook og klinker på badeværelset.
Alle boliger indeholder et lyst og stilrent køkken i hvidt med stålskinnegreb og mørk laminatbordplade og stålvask, ligesom der er indbygget induktionskogeplade, emhætte, indbygningsovn og køle/fryseskab. Der er forberedt til opvaskemaskine.
Badeværelserne er med moderne mørkegrå klinker samt hvidt vaskbord med grå formstøbt vask/bordplade. Der er forberedt til vaskemaskine og kondenstørretumbler på alle badeværelser. På badeværelserne er der gulvvarme.
Hver lejlighed har individuelt ventilationsanlæg med varmegenvinding.
Der er elevator til alle lejligheder over terræn, ligesom der også er et depotrum til alle boligerne.
Alle boliger har enten adgang til egen terrasse eller altan.
Afdelingen er særdeles centralt beliggende i Skanderborg midtby, og der er kun fem minutters gang til Adelgade og Lillesø. Der er fra flere af boligerne udsigt til by, mark og sø.
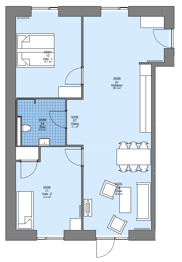
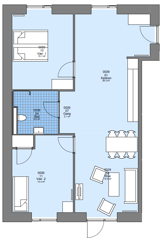
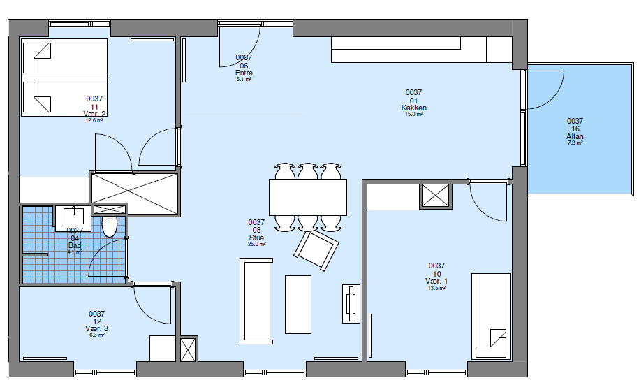
Der er flere forskellige typer af lejligheder. Der er udvalgt enkelte eksempler nedenfor.
Alle priser og plantegninger er vejledende.
Følgende faciliteter er
tilknyttet ejendommen:
Induktionskogeplade
Emhætte
Indbygningsovn
Køle/fryseskab
Forberedt til opvaskevaskemaskine
Forberedt til vaskemaskine
Forberedt til kondenstumbler
Gulvvarme på badeværelse
Én hund eller én kat er tilladt
Adgang til egen terrasse eller altan
Elevator




