
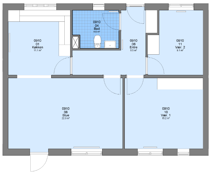
Der er 2 typer af lejligheder (10 ungdomsboliger og 9 familieboliger). Priser og plantegninger er vejledende.
Følgende faciliteter er
tilknyttet ejendommen:
Altan
Køleskab
Fryser
Komfur
Emhætte
Bruser
Skur
Vaskeri
Opvarmning: Fjernvarme
Cykelrum
Antenne
P-plads

