Afd. 32 Vestergade 49 & 55-59

Der er 4 typer af lejligheder i afdelingen. Priser og plantegninger er vejledende.

Følgende faciliteter er
tilknyttet ejendommen:

Opvarmning: Ikke angivet

Husdyr tilladt

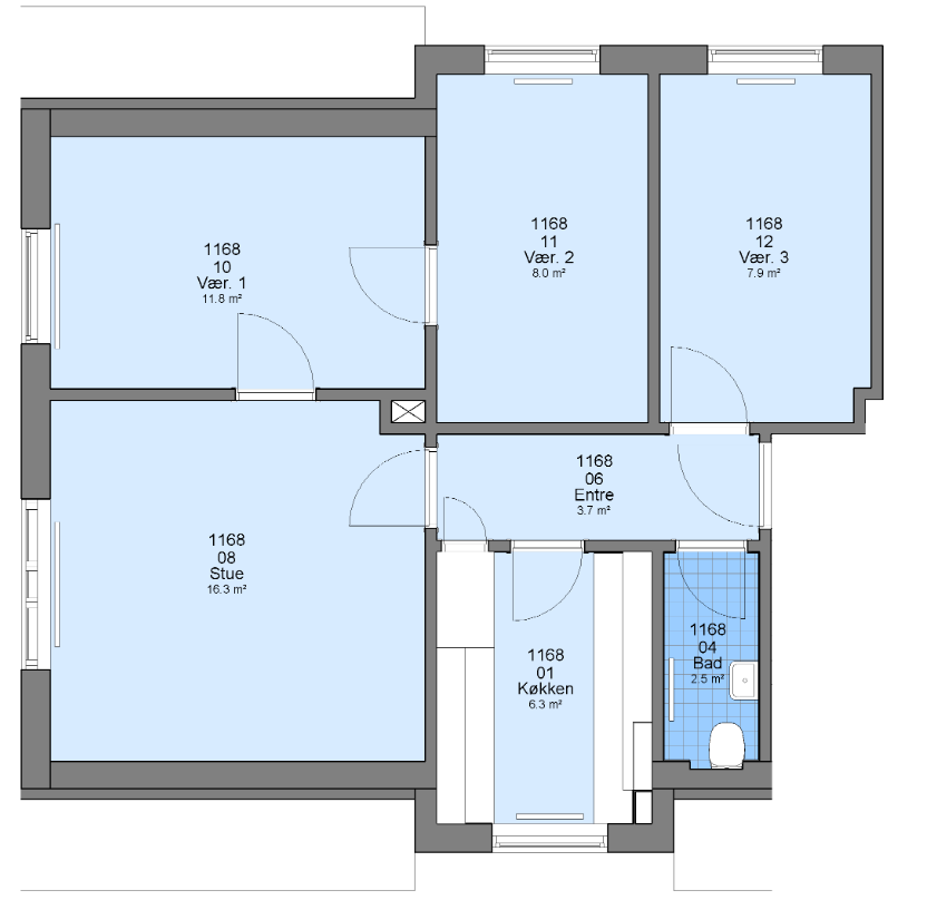
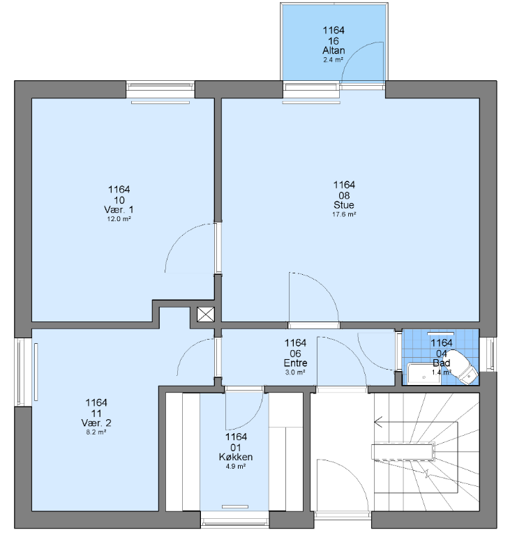
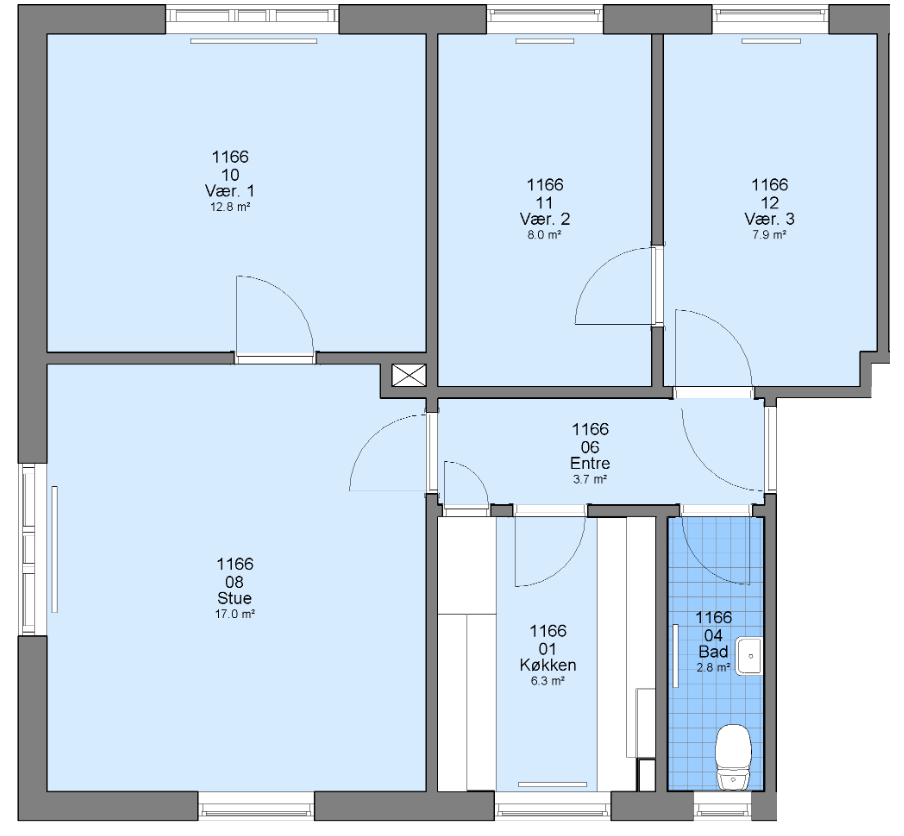
Leijligheder
Værelser
m2
Plan
Indskud
Husleje
2
2
59
Plan
13 275,00
4 001,00
2
3
66
Plan
14 850,00
4 755,00
2
3
65
Plan
14 625,00
4 162,00
2
4
82
Plan
18 450,00
5 217,00
Der tages forbehold for trykfejl ...