Afd. 19 Granhøjen 92-158

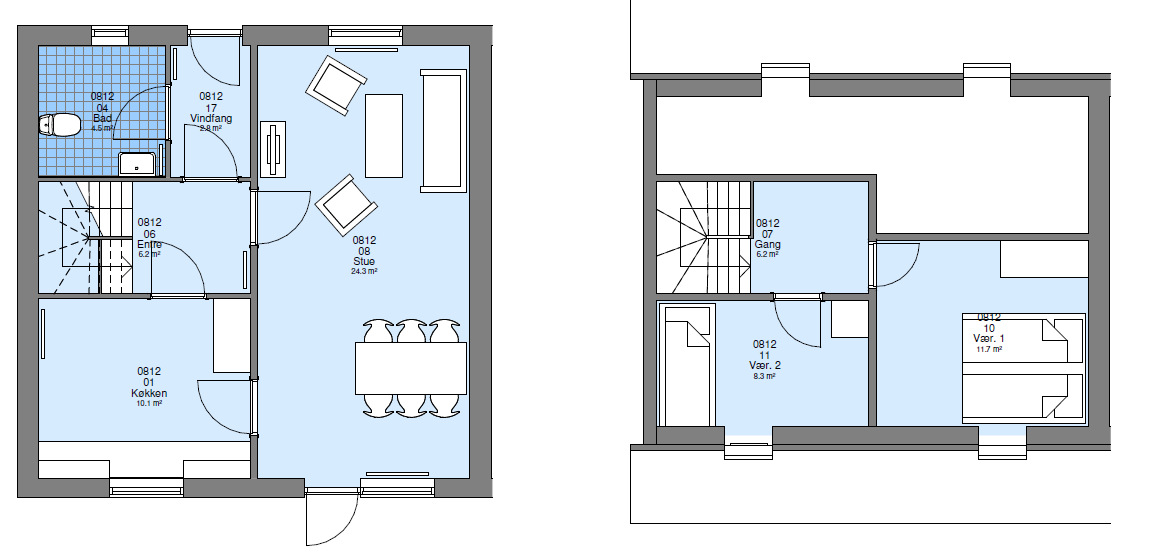
Der er flere forskellige typer af lejligheder. Nederst på siden har vi udvalgt nogle eksempler. Alle plantegninger og priser er vejledende.

Følgende faciliteter er
tilknyttet ejendommen:

  • Have til alle lejligheder
  • Køleskab
  • Komfur
  • Emhætte
  • Bruser
  • Loftsrum
  • Skur
  • Opvarmning: Fjernvarme
  • Antenne
  • Det er tilladt at holde 2 husdyr pr. husstand - ingen kamp- eller muskelhunde
  • Legeplads
Leijligheder
Værelser
m2
Plan
Indskud
Husleje
8
2
70
Plan
15 750,00
4 488,00
13
3
85
Plan
19 125,00
5 439,00
5
4
101
Plan
22 725,00
5 948,00
4
4
105
Plan
23 625,00
6 719,00
4
4
108
Plan
24 300,00
6 925,00
Der tages forbehold for trykfejl ...